RENDERING

RHINO/ADOBE PHOTOSHOP + LIGHTROOM

 

REALISTIC RENDERS

The models in these renderings were all built and rendered in Rhino. What I like about a realistic rendering, as opposed to something more abstract, is the daylighting detail. Being able to visualize the relationship between a projects orientation on a site, its openings, and the sun is my favorite way to try and understand how a space may actually feel.

 
 

 

CONCEPTUAL RENDERS

Conceptual renders also demonstrate how it would feel to be in a space. However, these images contain less detail than realistic renders and are almost better described as diagrammatic since the elements that are chosen to stand out are chosen to show what that particular element adds to the space.

 

PROJECTIONS

 
 

RHINO/ADOBE ILLUSTRATOR

 
 
 
 

RHINO/ADOBE ILLUSTRATOR

 

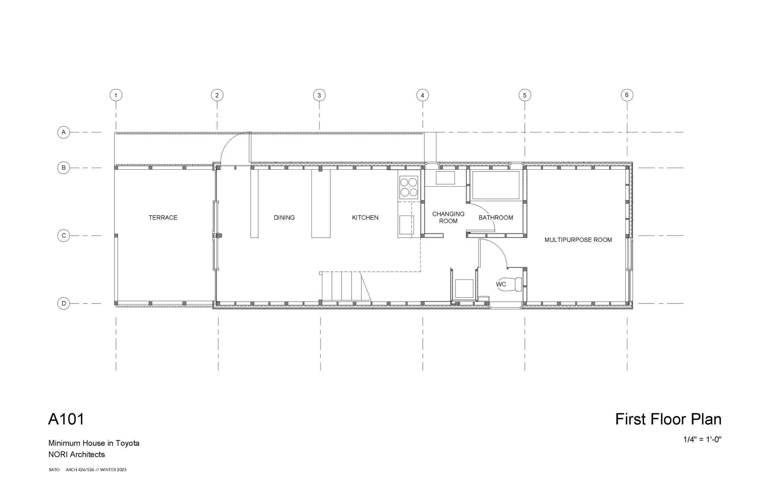
3D PLANS

This is a personal project I worked on in the summer of ‘24 when I became interested in documenting various programming methods for units under 550 sq. ft. in Portland. Deciding to extrude the walls and make the plans three dimensional was something I was experimenting with. Drawing it this way adds a layer of context (height) that’s uncommon in traditional plans.

 
 

CONSTRUCTION PLANS